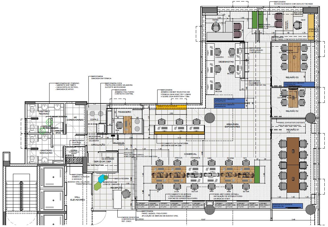
A nova sede da Redibra com 400m². Localizada no bairro do Itaim Bibi em São Paulo.
As fotos abaixo representam o final da obra, antes do espaço ser ocupado.
O mobiliário e as divisórias seguem o conceito da marca da empresa, nas cores verde e azul. Um grande espaço de circulação foi previsto, para adicionar expositores com os produtos desenvolvidos e suas marcas.

PLANTA DO FORRO

PLANTA DE LAYOUT

Back to Top