O edifício está localizado em uma esquina do bairro de Campos Elíseos, em São Paulo, onde acontecem grandes intervenções, com novos edifícios corporativos e culturais.
Neste retrofit, a estrutura existente foi mantida, acrescentando o reforço estrutural.
Como revestimento temos as placas de fachada ventilada, e vidro e massa texturizada.Na esquina foi adicionado um tecido, permitida a entrada da luz natural nos ambientes.
Fotos do edifício antes do retrofit
Foto do edifício antes do retrofit
Fachada conceito da esquina
Conceito da Fachada para a Alameda Ribeiro Silva
Conceito para fachada voltada para a praça interna
Foto Arqa. Monique L Ribeiro
Praça interna que liga os edifícios da Alameda Barão de Piracicaba com o Edifício Qualidade de Vida
Foto da esquina Alameda Ribeiro da Silva com Alameda Dino Bueno
Elevação Alameda Ribeiro da Silva
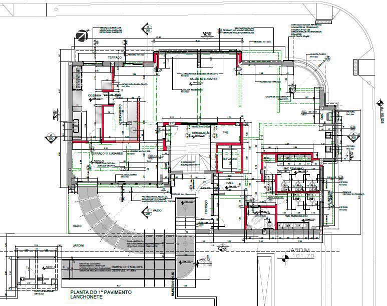
Planta de Obra Civil para o 1º Pavimento | O projeto foi adaptado para receber o setor de recursos humanos de uma empresa. Nos pavimentos são distribuídos os refeitórios, salas para cursos e aulas de dança, além das exposições.
Arq. Frederico Marques | Arq. Renato Siqueira
Back to Top