Projeto para o Centro de Convenções, no Edifício São Paulo Corporate Tower, ocupando uma área no Pavimento Térreo do empreendimento com 400m². Projeto de arquitetura desenvolvido para a Triplo R Arquitetura.
Arquitetura: Triplo R Arquitetura
Arqs. Renato Siqueira e Frederico Azevedo Marques
Arqs. Renato Siqueira e Frederico Azevedo Marques
Luminotécnica: Mingrone Iluminação
Execução da Obra: Athie Wohnrath
Execução da Obra: Athie Wohnrath

Circulação Interna do Foyer








Fotos dos ambientes. Foram utilizados painéis acústicos da OWA, o Nexcustic, nas salas de convenções e foyer. Toda a infra no forro, é exposta e na cor preta, sendo importante toda a compatibilização e desenho das instalações.
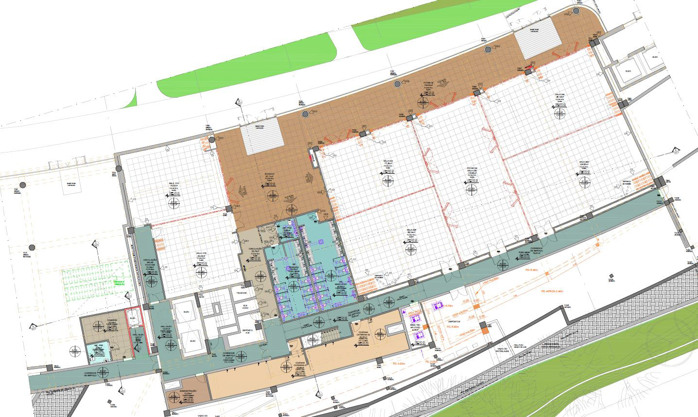
Planta do Pavimento Térreo - Acabamentos

Foto da finalização da obra no início de 2018. Montagem das divisórias acústicas deslizantes que separam as salas de convenções.
