Edifício Colina 103
Projeto de arquitetura de interiores para as áreas comuns do edifício e apartamento modelo de 2 e 3 dormitórios. Áreas comuns 470m², Apartamento modelo: 113m²
Projeto de arquitetura de interiores para as áreas comuns do edifício e apartamento modelo de 2 e 3 dormitórios. Áreas comuns 470m², Apartamento modelo: 113m²
Construção e Incorporação: NOVOMARCO

Estudo inicial para o Lobby nas áreas comuns do edifício - Ilustração Frederico Marques


Lobby - Imagem Hardt3D

Varanda Gourmet Integrada - Ilustração Frederico Marques

Apartamento Modelo - Varanda Gourmet Integrada - Imagem: Hardt 3d

Apartamento Modelo - Living Integrado - Imagem Hardt3D

Espaço Fitness - Imagem Hardt 3D

Áreas Comuns Brinquedoteca - Imagem Hardt 3D

Estudo para o Salão de Festas - Revestimentos - Ilustração Frederico Marques


Salão de Festas - Imagem Hardt 3D

Salão de Festas - Elevação - Imagem: Hardt 3d

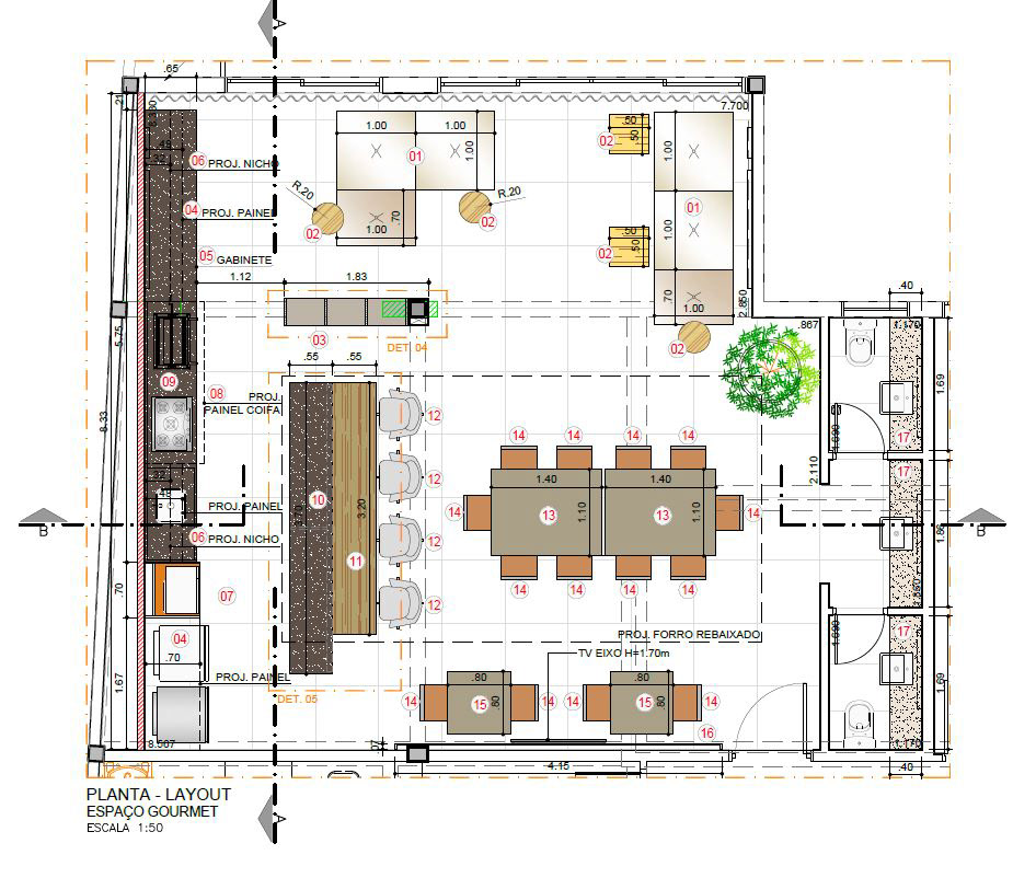
Estudo para o Espaço Gourmet nas áreas comuns do edifício - Ilustração: Frederico Marques

Estudo para o Espaço Gourmet nas áreas comuns do edifício - Ilustração: Frederico Marques


Espaço Gourmet - Áreas Comuns - Imagem Hardt 3D